Gallery
Martin Guitar Office Hero
Office

Martin Guitar Office

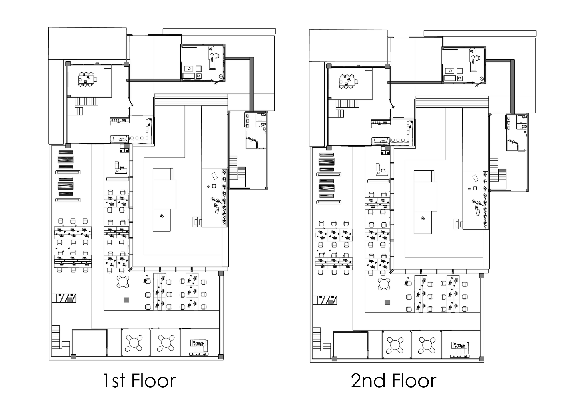
The "Folk Stage" concept transforms the office into an open meadow where creativity can wander freely.

Location Bangna-Trad KM22
Type Office
Year 2025
Tools Sketchup, 3Ds Max, D5

Design Concept

The "Folk Stage" concept transforms the office into an open meadow where creativity can wander freely. Reclaimed timber beams and natural stone flooring anchor the space, while live plants and acoustic wood paneling create warmth without enclosure. The music room doubles as a collaborative hub—a literal stage—where team members gather, play, and create.

Next Project Humo Y Valor